תאריך

שטח

אתר

תכנון

פרוייקט

2004

150 מ"ר

כפר יהושוע

י. מאירי

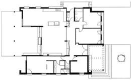
בית פרטי

 
צדדיו של הבית בנויים משני קירות אבן מסיביים ומקבילים, התומכים תקרת בטון שטוחה.
חדרי השינה סובבים את החלל הציבורי ומדגישים את מרכזיותו. בחזית הבית מבואה רחבה וטקסית. לכוון החצר האחורית פטיו מוגן, המקורה בפרגולה בנויה מבטון ופלדה. התכנית, החתך, פרטי האבן והבטון, מקשרים בין מסורתיות למודרניות ויוצרים מבנה ארכיטקטוני מורכב, החומק מהגדרות פשוטות.